Ивантиново (Серпуховский район Московской области)
Проект Д-70
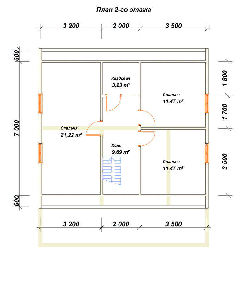
Размеры:8х8
Площадь:140 м2
Санузлов:
Комнат:4
Особенности:
Терраса
Нестроганный обычный брус
150х1501 169 000 р.
150х2001 346 000 р.
Профилированный брус естественной влажности
145х1451 258 000 р.
145х1951 444 000 р.
Сухой брус камерной сушки
140х1401 454 000 р.
140х1901 671 000 р.
Фундамент
Свой фундамент
Свайно винтовой — 171 000 р.
ЖБС — 177 000 р.
Лента — 520 000 р.
Кровля
Рубероид — Бесплатно
Металлочерепица — 270 000 р.
Ондулин — 230 000 р.
Дополнительные элементы
Цена: 0 р.
Заказать
Хотите внести изменения в проект?
Вы можете внести любые изменения в проект дома. Сделаем расчет в течение
одного дня.
Комплектация
Доп.услуги
Доставка
Описание
Фундамент (на выбор) в стоимость не входит, рассчитывается отдельно:
Свайно-Винтовой
171 000 р.
Забивной ЖБ
177 000 р.
Ленточный
520 000 р.
Основание дома:
Обвязка основания:
Двойная, выполнена из нестроганого бруса сечением 150х150 мм (естественной влажности) и из бруса
сечением 100х150 мм на ребро (естественной влажности).
Лаги пола 1-го этажа:
В обвязку основания устанавливаются лаги пола первого этажа, из нестроганого бруса сечением 150х100 мм
(естественной влажности), с шагом укладки 590 мм. Крепятся на опору бруса.
Лаги пола 2-го этажа:
Из нестроганого бруса сечением 150х100 мм (естественной влажности), с шагом укладки 590 мм.
Черновой пол:
Нестроганая доска сечением 25х100 мм или 25*150 мм (естественной влажности).
Антисептирование:
Нижняя обвязка основания сруба и лаги пола, пропитываются антисептическим составом.
1 этаж:
Поднятие стен первого этажа:
3 м; (+- 5 см), 21 ряд бруса.
Высота 1-го этажа:
Высота от лаг пола до потолочных балок: 2,7 м (+- 5 см),
Внешние стены сруба:
Нестроганый брус сечение м 150 мм (ширина) х 150 мм (высота) - естественной влажности.
Строганый профилированный брус сечением 145 мм (ширина) х 145 мм (высота) - естественной
влажности.
Брус изготовлен из древесины хвойных пород (ель, сосна).
Перегородки сруба:
Нестроганый брус сечение м 100 мм (ширина) х 150 мм (высота) - естественной влажности.
Строганый профилированный брус сечением 95 мм (ширина) х 145 мм (высота) - естественной
влажности.
Брус изготовлен из древесины хвойных пород (ель, сосна).
2 этаж:
Высота 2-го этажа:
2,6 м (Высота от лаг пола до потолочного ригеля); (+- 5 см),
Перегородки:
Каркасные перегородки. В комплект не входят. Устанавливаются при отделке.
Сруб:
Сборка сруба:
Сруб собирается на деревянные берёзовые нагеля круглой формы. (Нагель обеспечивает вертикальное
скольжение бруса, препятствуя его горизонтальному смещению).
Угловые соединения сруба:
Угловые соединения сруба собираются в «Теплый угол» «Ласточкин хвост»(Такая сборка увеличивает жесткость
конструкции и уменьшает тепловые потери в углах сруба).
Утеплитель:
Между венцами прокладывается льноджутовое полотно.
Кровля:
Крыша:
Согласно проекту дома (двухскатная, ломаная, ассиметричная). Высота конька кровли согласно проекту дома.
Стропильная конструкция:
Нестроганая доска сечением 50х150 мм (естественной влажности), с шагом укладки 590 мм.
Обрешетка:
Обрешётка выполняется из обрезной доски сечением 25х150 мм (естественной влажности).
Фронтоны:
Имитация бруса или доска 150х25
Кровельное покрытие:
В базовой комплектации кровельное покрытие - рубероид. За дополнительную плату можно установить
металлочерепицу, ондулин, или мягкую кровлю.
Окна, двери:
Окна:
Отсутствуют. В брусовой части конструкции, выполняется 2-ва ряда перевязки из профилированного бруса.
Двери:
Отсутствуют. В брусовой части конструкции, выполняется 3-ри ряда перевязки из профилированного бруса.
Входная дверь:
Отсутствует. В брусовой части конструкции, выполняется 3-ри ряда перевязки из профилированного бруса.
Доставка и сборка дома:
Доставка дома:
Доставка комплекта дома в радиусе 550 км от нашей производственной базы, расположенной по
адресу: г. Чухлома,
осуществляется бесплатно, сверх 550 км рассчитывается из расчета 140 руб/км. за
одну машину.
Расчёт доставки онлайн. Точную стоимость доставки уточнять у менеджеров.
Сборка дома:
В стоимость включены материалы и сборка на участке заказчика.
Замена внутренних перегородок
Увеличение толщины со 100 на 150 мм
от 70 000 р.*
Дополнительный венец
Увеличение высоты сруба
от 42 000 р.*
Замена половых и потолочных балок со 100х150
на 200х50 мм
Бесплатно
на 200х100
от 35 000 р.*
Обработка антисептиком целиком
Сруб обрабатывается огне-био защитой в 2 слоя
от 124 000 р.*
Аренда генератора
Предоставляется при отсутствии электричества на участке, оплачивается только бензин
Бесплатно
Строительная бытовка
При отсутствии жилья для строителей
50 000 р.*
Угловое соединение в чашу
Замена углового соединения с "теплого угла" на "чашу".
по запросу
Профилированный брус "под блок хаус"
Закругление наружной стороны профилированного бруса любого сечения.
Бесплатно
Брусовые фронтоны
Замена каркасных фронтонов на брусовые
от 142 000 р.*
Брусовые перегородки на мансарде
Установка перегородок мансардного этажа толщиной 100 мм из бруса
от 123 000 р.*
Черновой пол на 2 этаже
Установка черновых полов на втором этаже
от 48 000 р.*
Строительная компания "Тимбер" осуществляет доставку до места строительства собственным транспортом от нашего
производства, расположенного в Костромской области, Чухломском районе в г. Чухлома. Доставка дома или бани, а также
всех необходимых материалов осуществляется в любые области Центрального Федерального округа. В пределах 550 км
доставка осуществляется бесплатно.
Расстояние:
0 км
Стоимость:
0 руб.
Проект дома из бруса 8х8 с террасой площадью: 140 м2, этажностью: одноэтажный с мансардой. Лучший вариант для постройки на пригородном участке или на площадке в городе. При воплощении проекта нередко используется пиленый брус размерами 150х150, 150х200 или 200х200 мм. Кроме того, вы вправе заказать строительство из профбруса естественной влажности или подсушенный. Сечение профилированного бруса: 145 на 145, 145 на 195 и 195 на 195 миллиметров. Для монтажа дома из дерева может применяться уже подготовленный фундамент, имеющийся на вашей строительной площадке. Если у вас фундамент отсутствует, компанией предлагается на выбор три типа основания: свайный, ленточный, жб сваи. Отдельный тип основания пригоден для определенного типа почвы и выбор зависит от некоторых факторов (глубина промерзания грунта, глубина залегания грунтовых вод, неравномерность участка и прочие). Покрытие крыши деревянного дома в стандартной комплектации осуществляется из рубероида. По просьбе, за доп плату предлагается на выбор покрытие крыши из иных материалов. Строительная фирма "Тимбер" сделает кровлю из ондулина, металлочерепицы и других кровельных материалов. Заказывайте строительство дома из бруса 8х8 с террасой по низкой цене. Для этого случая стоит только совершить звонок или отправить письмо по электронной почте.
Как мы работаем
1. Выбор проекта, проектирование и расчет
Подбираете подходящий проект и при необходимости вносим изменения во внешний вид и планировку. Или присылаете свой проект на расчет стоимости.
2. Заключение договора
Подписываем договор прямо на вашем участке. Оценим пути подъезда и особенности рельефа. Окончательную цену строительства фиксируем в договоре.
3. Подготовка и производство материалов
1-2 недели в зависимости от сложности, размера и материалов дома.
4. Доставка и сборка
Доставка и разгрузка производится под личным контролем директора компании. Сборка дома в среднем занимает от 10 до 30 дней.
5. Усадка
Время усадки дома занимает 6-12 месяцев (естественный процесс древесины, пренебрегать им нельзя).
6. Отделка и ввод в эксплуатацию
Завершаем строительство дома под ключ: установка окон, дверей, инженерных систем и т.д.