Вы можете внести любые изменения в проект дома. Сделаем расчет в течение
одного дня.
Комплектация
Доп.услуги
Доставка
Описание
Фундамент (на выбор) в стоимость не входит, рассчитывается отдельно:
Свайно-Винтовой
228 000 р.
Забивной ЖБ
236 000 р.
Ленточный
600 000 р.
Основание дома:
Обвязка основания:
Двойная, выполнена из нестроганого бруса сечением 150х150 мм (естественной влажности) и из бруса
сечением 100х150 мм на ребро (естественной влажности).
Лаги пола 1-го этажа:
В обвязку основания устанавливаются лаги пола первого этажа, из нестроганого бруса сечением 150х100 мм
(естественной влажности), с шагом укладки 590 мм. Крепятся на опору бруса.
Лаги пола 2-го этажа:
Из нестроганого бруса сечением 150х100 мм (естественной влажности), с шагом укладки 590 мм.
Черновой пол:
Нестроганая доска сечением 25х100 мм или 25*150 мм (естественной влажности).
Антисептирование:
Нижняя обвязка основания сруба и лаги пола, пропитываются антисептическим составом.
1 этаж:
Поднятие стен первого этажа:
3 м; (+- 5 см), 21 ряд бруса.
Высота 1-го этажа:
Высота от лаг пола до потолочных балок: 2,7 м (+- 5 см),
Внешние стены сруба:
Нестроганый брус сечение м 150 мм (ширина) х 150 мм (высота) - естественной влажности.
Строганый профилированный брус сечением 145 мм (ширина) х 145 мм (высота) - естественной
влажности.
Брус изготовлен из древесины хвойных пород (ель, сосна).
Перегородки сруба:
Нестроганый брус сечение м 100 мм (ширина) х 150 мм (высота) - естественной влажности.
Строганый профилированный брус сечением 95 мм (ширина) х 145 мм (высота) - естественной
влажности.
Брус изготовлен из древесины хвойных пород (ель, сосна).
2 этаж:
Поднятие стен второго этажа:
1,5 м; (+- 5 см), 11 рядов бруса.
Высота 2-го этажа:
2,6 м (Высота от лаг пола до потолочного ригеля); (+- 5 см),
Внешние стены сруба:
Нестроганый брус сечение м 150 мм (ширина) х 150 мм (высота) - естественной влажности.
Строганый профилированный брус сечением 145 мм (ширина) х 145 мм (высота) - естественной
влажности.
Брус изготовлен из древесины хвойных пород (ель, сосна).
Перегородки:
Нестроганый брус сечение м 100 мм (ширина) х 150 мм (высота) - естественной влажности.
Строганый профилированный брус сечением 95 мм (ширина) х 145 мм (высота) - естественной
влажности.
Брус изготовлен из древесины хвойных пород (ель, сосна).
Сруб:
Сборка сруба:
Сруб собирается на деревянные берёзовые нагеля круглой формы. (Нагель обеспечивает вертикальное
скольжение бруса, препятствуя его горизонтальному смещению).
Угловые соединения сруба:
Угловые соединения сруба собираются в «Теплый угол» «Ласточкин хвост»(Такая сборка увеличивает жесткость
конструкции и уменьшает тепловые потери в углах сруба).
Утеплитель:
Между венцами прокладывается льноджутовое полотно.
Кровля:
Крыша:
Согласно проекту дома (двухскатная, ломаная, ассиметричная). Высота конька кровли согласно проекту дома.
Стропильная конструкция:
Нестроганая доска сечением 50х150 мм (естественной влажности), с шагом укладки 590 мм.
Обрешетка:
Обрешётка выполняется из обрезной доски сечением 25х150 мм (естественной влажности).
Фронтоны:
Строганый профилированный брус сечением 145 мм (ширина) х 145 мм (высота) - естественной влажности
Кровельное покрытие:
В базовой комплектации кровельное покрытие - рубероид. За дополнительную плату можно установить
металлочерепицу, ондулин, или мягкую кровлю.
Окна, двери:
Окна:
Отсутствуют. В брусовой части конструкции, выполняется 2-ва ряда перевязки из профилированного бруса.
Двери:
Отсутствуют. В брусовой части конструкции, выполняется 3-ри ряда перевязки из профилированного бруса.
Входная дверь:
Отсутствует. В брусовой части конструкции, выполняется 3-ри ряда перевязки из профилированного бруса.
Доставка и сборка дома:
Доставка дома:
Доставка комплекта дома в радиусе 550 км от нашей производственной базы, расположенной по
адресу: г. Чухлома,
осуществляется бесплатно, сверх 550 км рассчитывается из расчета 140 руб/км. за
одну машину.
Расчёт доставки онлайн. Точную стоимость доставки уточнять у менеджеров.
Сборка дома:
В стоимость включены материалы и сборка на участке заказчика.
Замена внутренних перегородок
Увеличение толщины со 100 на 150 мм
от 105 000 р.*
Дополнительный венец
Увеличение высоты сруба
от 44 000 р.*
Замена половых и потолочных балок со 100х150
на 200х50 мм
Бесплатно
на 200х100
от 37 000 р.*
Обработка антисептиком целиком
Сруб обрабатывается огне-био защитой в 2 слоя
от 211 000 р.*
Аренда генератора
Предоставляется при отсутствии электричества на участке, оплачивается только бензин
Бесплатно
Строительная бытовка
При отсутствии жилья для строителей
50 000 р.*
Угловое соединение в чашу
Замена углового соединения с "теплого угла" на "чашу".
по запросу
Профилированный брус "под блок хаус"
Закругление наружной стороны профилированного бруса любого сечения.
Бесплатно
Брусовые фронтоны
Замена каркасных фронтонов на брусовые
По запросу
Брусовые перегородки на мансарде
Установка перегородок мансардного этажа толщиной 100 мм из бруса
По запросу
Черновой пол на 2 этаже
Установка черновых полов на втором этаже
от 37 000 р.*
Строительная компания "Тимбер" осуществляет доставку до места строительства собственным транспортом от нашего
производства, расположенного в Костромской области, Чухломском районе в г. Чухлома. Доставка дома или бани, а также
всех необходимых материалов осуществляется в любые области Центрального Федерального округа. В пределах 550 км
доставка осуществляется бесплатно.
Расстояние:
0 км
Стоимость:
0 руб.
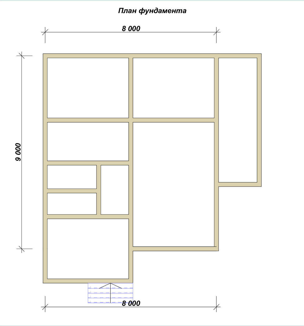
Проект дома из профилированного бруса 8х9 площадью: 147 кв.м, этажностью: 1,5 этажа. Вне конкуренции вариант для постройки на пригородной площадке или на площадке в черте города. Для реализации проекта нередко используется обычный брус размерами 150х150, 150х200 или 200х200 мм. Также, вы вправе заказать возведение из профбруса естественной влажности или подсушенный. Размеры профилированного бруса: 145х145, 145х195 и 195х195 мм. Для сборки брусового дома может применяться уже готовый фундамент, находящийся на вашем участке. На случай если у вас фундамента нет, компанией предлагается на выбор 3 вида основания: свайно-винтовой, ленточный мелкозаглубленный, жб сваи. Отдельный тип фундамента пригоден для определенного типа почвы и подбор зависит от различных моментов (степень промерзания грунта, глубина залегания грунтовых вод, неравномерность местности и др). Покрытие крыши брусового строения в стандартной комплектации осуществляется из рубероида. По просьбе, за доп плату выбирается кровля из других материалов. Строительная фирма "Тимбер" реализует кровлю из ондулина, металлочерепицы и других кровельных материалов. Закажите строительство дома из профилированного бруса 8х9 по приемлемой цене. Для этого стоит только совершить звонок или отправить письмо по электронной почте info@sk-timber.ru.
Как мы работаем
1. Выбор проекта, проектирование и расчет
Подбираете подходящий проект и при необходимости вносим изменения во внешний вид и планировку. Или присылаете свой проект на расчет стоимости.
2. Заключение договора
Подписываем договор прямо на вашем участке. Оценим пути подъезда и особенности рельефа. Окончательную цену строительства фиксируем в договоре.
3. Подготовка и производство материалов
1-2 недели в зависимости от сложности, размера и материалов дома.
4. Доставка и сборка
Доставка и разгрузка производится под личным контролем директора компании. Сборка дома в среднем занимает от 10 до 30 дней.
5. Усадка
Время усадки дома занимает 6-12 месяцев (естественный процесс древесины, пренебрегать им нельзя).
6. Отделка и ввод в эксплуатацию
Завершаем строительство дома под ключ: установка окон, дверей, инженерных систем и т.д.