Одноэтажный дом из бруса 10х11 с мансардной крышей
Одноэтажный дом из бруса 10х11 с мансардной крышей
Проект Д-155
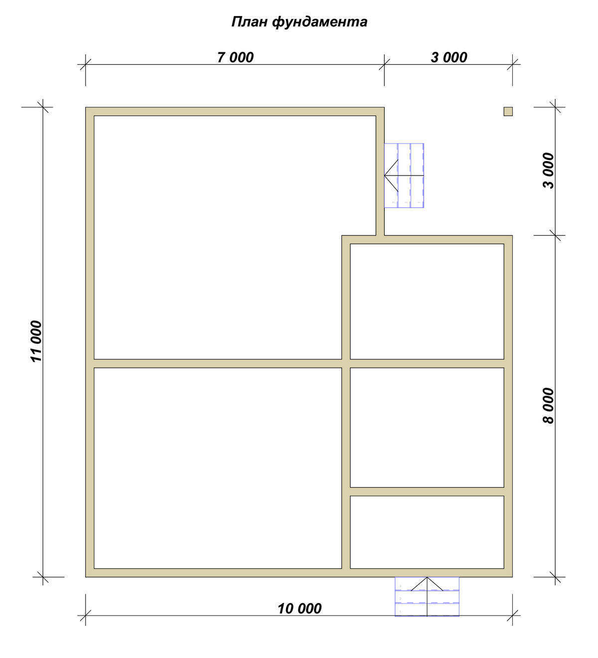
Размеры:10х11
Площадь:172 м2
Санузлов:
Комнат:2
Особенности:
КукушкаКотельная
Нестроганный обычный брус
150х1501 294 000 р.
150х2001 606 000 р.
Профилированный брус естественной влажности
145х1451 375 000 р.
145х1951 692 000 р.
Сухой брус камерной сушки
140х1401 585 000 р.
140х1901 939 000 р.
Фундамент
Свой фундамент
Свайно винтовой — 279 000 р.
ЖБС — 289 000 р.
Лента — 540 000 р.
Кровля
Рубероид — Бесплатно
Металлочерепица — 450 000 р.
Ондулин — 383 000 р.
Дополнительные элементы
Цена: 0 р.
Заказать
Хотите внести изменения в проект?
Вы можете внести любые изменения в проект дома. Сделаем расчет в течение
одного дня.
Комплектация
Доп.услуги
Доставка
Описание
Фундамент (на выбор) в стоимость не входит, рассчитывается отдельно:
Свайно-Винтовой
279 000 р.
Забивной ЖБ
289 000 р.
Ленточный
540 000 р.
Основание дома:
Обвязка основания:
Двойная, выполнена из нестроганого бруса сечением 150х150 мм (естественной влажности) и из бруса
сечением 100х150 мм на ребро (естественной влажности).
Лаги пола 1-го этажа:
В обвязку основания устанавливаются лаги пола первого этажа, из нестроганого бруса сечением 150х100 мм
(естественной влажности), с шагом укладки 590 мм. Крепятся на опору бруса.
Лаги пола 2-го этажа:
Из нестроганого бруса сечением 150х100 мм (естественной влажности), с шагом укладки 590 мм.
Черновой пол:
Нестроганая доска сечением 25х100 мм или 25*150 мм (естественной влажности).
Антисептирование:
Нижняя обвязка основания сруба и лаги пола, пропитываются антисептическим составом.
1 этаж:
Поднятие стен первого этажа:
3 м; (+- 5 см), 21 ряд бруса.
Высота 1-го этажа:
Высота от лаг пола до потолочных балок: 2,7 м (+- 5 см),
Внешние стены сруба:
Нестроганый брус сечение м 150 мм (ширина) х 150 мм (высота) - естественной влажности.
Строганый профилированный брус сечением 145 мм (ширина) х 145 мм (высота) - естественной
влажности.
Брус изготовлен из древесины хвойных пород (ель, сосна).
Перегородки сруба:
Нестроганый брус сечение м 100 мм (ширина) х 150 мм (высота) - естественной влажности.
Строганый профилированный брус сечением 95 мм (ширина) х 145 мм (высота) - естественной
влажности.
Брус изготовлен из древесины хвойных пород (ель, сосна).
2 этаж:
Высота 2-го этажа:
2,6 м (Высота от лаг пола до потолочного ригеля); (+- 5 см),
Перегородки:
Каркасные перегородки. В комплект не входят. Устанавливаются при отделке.
Сруб:
Сборка сруба:
Сруб собирается на деревянные берёзовые нагеля круглой формы. (Нагель обеспечивает вертикальное
скольжение бруса, препятствуя его горизонтальному смещению).
Угловые соединения сруба:
Угловые соединения сруба собираются в «Теплый угол» «Ласточкин хвост»(Такая сборка увеличивает жесткость
конструкции и уменьшает тепловые потери в углах сруба).
Утеплитель:
Между венцами прокладывается льноджутовое полотно.
Кровля:
Крыша:
Согласно проекту дома (двухскатная, ломаная, ассиметричная). Высота конька кровли согласно проекту дома.
Стропильная конструкция:
Нестроганая доска сечением 50х150 мм (естественной влажности), с шагом укладки 590 мм.
Обрешетка:
Обрешётка выполняется из обрезной доски сечением 25х150 мм (естественной влажности).
Фронтоны:
Имитация бруса или доска 150х25
Кровельное покрытие:
В базовой комплектации кровельное покрытие - рубероид. За дополнительную плату можно установить
металлочерепицу, ондулин, или мягкую кровлю.
Окна, двери:
Окна:
Отсутствуют. В брусовой части конструкции, выполняется 2-ва ряда перевязки из профилированного бруса.
Двери:
Отсутствуют. В брусовой части конструкции, выполняется 3-ри ряда перевязки из профилированного бруса.
Входная дверь:
Отсутствует. В брусовой части конструкции, выполняется 3-ри ряда перевязки из профилированного бруса.
Доставка и сборка дома:
Доставка дома:
Доставка комплекта дома в радиусе 550 км от нашей производственной базы, расположенной по
адресу: г. Чухлома,
осуществляется бесплатно, сверх 550 км рассчитывается из расчета 140 руб/км. за
одну машину.
Расчёт доставки онлайн. Точную стоимость доставки уточнять у менеджеров.
Сборка дома:
В стоимость включены материалы и сборка на участке заказчика.
Замена внутренних перегородок
Увеличение толщины со 100 на 150 мм
от 27 000 р.*
Дополнительный венец
Увеличение высоты сруба
от 42 000 р.*
Замена половых и потолочных балок со 100х150
на 200х50 мм
Бесплатно
на 200х100
от 48 000 р.*
Обработка антисептиком целиком
Сруб обрабатывается огне-био защитой в 2 слоя
от 160 000 р.*
Аренда генератора
Предоставляется при отсутствии электричества на участке, оплачивается только бензин
Бесплатно
Строительная бытовка
При отсутствии жилья для строителей
50 000 р.*
Угловое соединение в чашу
Замена углового соединения с "теплого угла" на "чашу".
по запросу
Профилированный брус "под блок хаус"
Закругление наружной стороны профилированного бруса любого сечения.
Бесплатно
Брусовые фронтоны
Замена каркасных фронтонов на брусовые
от 403 000 р.*
Брусовые перегородки на мансарде
Установка перегородок мансардного этажа толщиной 100 мм из бруса
от 228 000 р.*
Черновой пол на 2 этаже
Установка черновых полов на втором этаже
от 84 000 р.*
Строительная компания "Тимбер" осуществляет доставку до места строительства собственным транспортом от нашего
производства, расположенного в Костромской области, Чухломском районе в г. Чухлома. Доставка дома или бани, а также
всех необходимых материалов осуществляется в любые области Центрального Федерального округа. В пределах 550 км
доставка осуществляется бесплатно.
Расстояние:
0 км
Стоимость:
0 руб.
Компания "Тимбер" представляет проект одноэтажного дома из бруса 10х11. Цена на его реализацию многих порадует. Для строительства используется либо нестроганный, либо профилированный брус различных сечений. Проф брус предлагается камерной сушки или естественной влажности. По базовой комплектации кровля выполняется из рубероида. Можно выбрать в качестве доп услуги другой тип кровли: ондулин или металлочерепицу. Общая площадь одноэтажного дома из брус 10х11 с мансардной крышей составляет 172 кв.м. По фото можно увидеть, что планировка выполнена достаточно просто и грамотно. Внизу располагаются холл, ванная комната, кладовка, печь, гостиная и кухня. Мансарду занимают две спальные комнаты, холл, туалет и второй свет. Если вам понравился проект одноэтажного дома 10х11, то звоните или пишите в СК "Тимбер" и заказывайте строительство. После подписания договора наши мастера незамедлительно приступят к работе и сделают все качественно и быстро.
Как мы работаем
1. Выбор проекта, проектирование и расчет
Подбираете подходящий проект и при необходимости вносим изменения во внешний вид и планировку. Или присылаете свой проект на расчет стоимости.
2. Заключение договора
Подписываем договор прямо на вашем участке. Оценим пути подъезда и особенности рельефа. Окончательную цену строительства фиксируем в договоре.
3. Подготовка и производство материалов
1-2 недели в зависимости от сложности, размера и материалов дома.
4. Доставка и сборка
Доставка и разгрузка производится под личным контролем директора компании. Сборка дома в среднем занимает от 10 до 30 дней.
5. Усадка
Время усадки дома занимает 6-12 месяцев (естественный процесс древесины, пренебрегать им нельзя).
6. Отделка и ввод в эксплуатацию
Завершаем строительство дома под ключ: установка окон, дверей, инженерных систем и т.д.